Предназначена для полуавтоматического складывания и склеивания кроя четырех клапанного гофроящика широкого диапазона типоразмеров по боковому клапану.
Выполняются следующие операции:
Автоматическая подача заготовок в руки оператору.
Автоматическое фальцевание и нанесение клеевой дорожки.
Формирование стопы упаковок заданного количества с подбивкой и выравниванием торца.
За 5 минут перестраивается на любой типоразмер ящика.
Обслуживается 2 операторами.
В качестве клея используется дисперсия ПВА.
ОСНОВНЫЕ ТЕХНИЧЕСКИЕ ХАРАКТЕРИСТИКИ
Скорость движения подающих лент, м/мин……регулируемая до 80
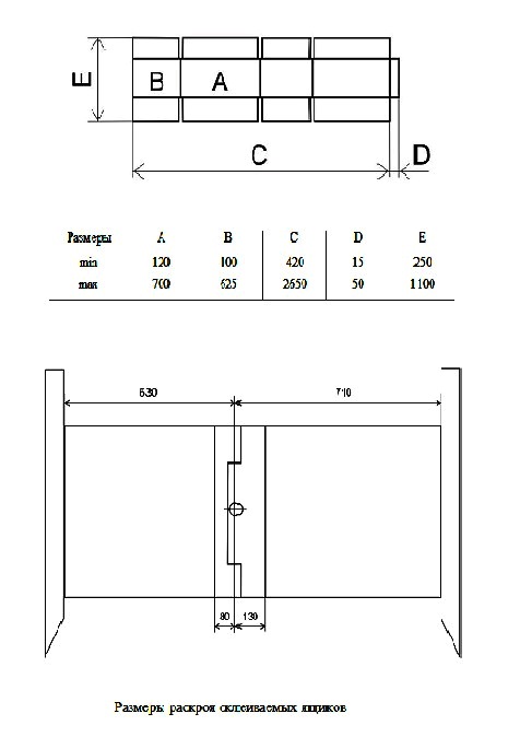
Размеры раскроя склеиваемых ящиков, мм
длина: ……max 2650……min 350
высота: ….max 1100……min 250
Подача гофрозаготовок в рабочую зону оператора……автоматическая
Грузоподъемность стола подачи гофрозаготовок в рабочую зону оператора, кг……200
Высота стопы гофрозаготовок на приемном столе, мм….600
Способ нанесения клея…. электропневматическая клеевая головка экструзионного типа, управляемая двумя оптодатчиками
Подача гофрозаготовок в машину……оператором вручную
Время перенастройки машины с одного вида гофротары на другой, мин……10
Производительность по гофроящикам №21, шт/час……1000 — 1500
Допустимая толщина гофрокартона, мм……1,5……10
Способ учета склеенных гофроящиков……электронный счетчик
Подача склеенных гофроящиков на обвязку……стопами с регулируемым количеством ящиков в стопе
Тип клея……поливинилацетатная дисперсия (клей ПВА с вязкостью 11…20сек)
Давление сжатого воздуха, атм:
– в клеевой емкости……2…4
– на подачу в пневмоцилиндр привода подвижных упоров……7…8
Электрическая мощность, кВт……3
Количество обслуживающего персонала, чел……2
Габаритные размеры, мм:
длина……4700
ширина……1800
высота……1800
Масса, кг……860
ВИДЕО ДЛЯ ПРОСМОТРА МОЖНО СКАЧАТЬ
https://disk.yandex.ru/d/TEfA7pwxOQtnhg
ВИДЕО


